HOUSEPLANS DESIGNED FOR THE WAY YOU LIVE
HOME
PLAN SEARCH
SERVICES
FAQs
ABOUT US
MY ACCOUNT
SHOPPING CART
CONTACT
TESTIMONIALS
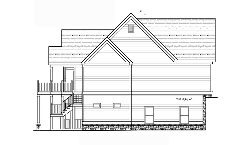
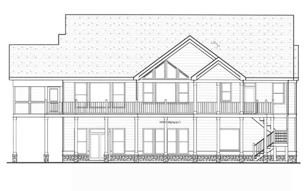
House Plan HPR-1203
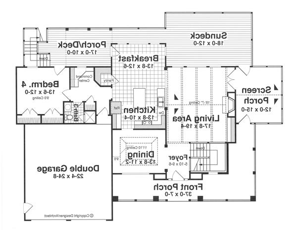
Total Living Area:
3203 Sq. Ft.
Main Level:
1356 Sq. Ft.
Lower Floor:
1847 Sq. Ft.
Bedrooms:
4
Full Baths:
3
Width:
69 Ft.
Depth:
54 Ft.
Garage Size:
2
Foundation:
WALK OUT BASEMENT
+
View Plan Details
Reverse Plan
Favorites
Print Plan
3D Tour
Plan Packages
HOUSE PLAN SETS
PDF BID SET
$850.00
PDF File
$1,325.00
Five Sets of Plans
$1,450.00
CAD File
$1,988.00
FOUNDATION OPTIONS
WALK OUT BASEMENT
$0.00
For more details about our plan packages
click here
770.928.0456
Cost to Build
Modify Plan
Free online quote >
Photographs, if shown, may reflect homeowner modifications. © Copyright by designer.
Modify Plan
Need to make changes?
Request a free
online quote
.
Save This Plan
Create an online portfolio of
favorite house plans.
Newsletter Sign-up
Each week receive our
free e-newsletters.
© copyright by designer
Main Level:
© copyright by designer
Lower Level:
Return to previous search results >
+ Add to Favorites >
Free Cost Estimator >
Purchase this Plan >
Plan Specifications
GENERAL HOUSE INFORMATION
Number of Stories:
2
Width:
69' 0"
Depth:
54' 0"
Dwelling Number:
Single
EXTERIOR STYLE
Craftsman
Mountain
Vacation
Country
Lake
Luxury
NUMBERS OF ROOMS
Bedrooms:
4
Full Baths:
3
FINISHED SQUARE FOOTAGE
Main Level:
1356 Sq. Ft.
Lower Level:
1847 Sq. Ft.
Total:
3203 Sq. Ft.
UNFINISHED SQUARE FOOTAGE
Garage:
579 Sq. Ft.
Porch:
145 Sq. Ft.
Deck:
56 Sq. Ft.
GARAGE
Garage Type:
Garage Size:
2
FOUNDATION
WALK OUT BASEMENT
HOUSE AND CEILING HEIGHTS
First Floor Ceiling:
9
Second Floor Ceiling:
10
Maximum House Height:
23' 11"
FRAMING INFORMATION
Roof Framing:
Stick
Exterior Wall Framing:
2x4
ROOF PITCH
Primary:
12/12
Secondary:
9/12
Dormer:
5/12
Porch:
3/12
ROOF LOAD
Live:
20
Dead:
10
INSULATION (R)
Per IRC Climate Zones
KEY FEATURES
Attached
Basement
Covered Front Porch
Deck
Dining Room
Double Vanity Sink
Family Room
Fireplace
Foyer
Great Room
Guest Suite
Inverted Living
Kitchen Island
Loft / Balcony
KEY FEATURES
Mud Room
Nook / Breakfast Area
Open Floor Plan
Rear Porch
Screened Porch/Sunroom
Separate Tub and Shower
Sitting Area
Suited for sloping lot
Suited for view lot
Vaulted Ceilings
Walk-in Closet
Walk-in Pantry
Walkout Basement
With Living Space
Top
Recently Viewed House Plans
Save this Plan
Save this Plan
Don't have an account?
Click here
to save your favorite plans.
Top
pnlExclusivePlansSearch
AVERY II House Plan Alternate Elevations
1203
Close
Oops!
It looks like you don't have a Flash player installed.
Click here
to go to Adobe download page.
AVERY II House Plan
1203
Close
Oops!
It looks like you don't have a Flash player installed.
Click here
to go to Adobe download page.
AVERY II House Plan Similar Plans
8671
Close
Oops!
It looks like you don't have a Flash player installed.
Click here
to go to Adobe download page.
Member of
Member of
The American Institute
of Building Design
National council of
Building Designers Certificate
Please make note, Contact us by phone for directions to office.
Office visits are by appointment only.
HOME
PLAN SEARCH
SERVICES
FAQs
ABOUT US
MY ACCOUNT
SHOPPING CART
CONTACT
TESTIMONIALS