HOUSEPLANS DESIGNED FOR THE WAY YOU LIVE
HOME
PLAN SEARCH
SERVICES
FAQs
ABOUT US
MY ACCOUNT
SHOPPING CART
CONTACT
TESTIMONIALS
House Plan HPR-1137
Total Living Area:
2407 Sq. Ft.
Main Level:
1536 Sq. Ft.
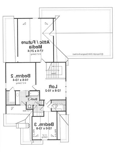
Second Floor:
871 Sq. Ft.
Bonus:
208 Sq. Ft.
Bedrooms:
3
Full Baths:
2,
Half Baths:
1
Width:
52 Ft.
Depth:
65 Ft.
Garage Size:
2
Foundation:
Basement Alternate, Slab
+
View Plan Details
Reverse Plan
Favorites
Print Plan
3D Tour
Plan Packages
HOUSE PLAN SETS
PDF File
$900.00
For more details about our plan packages
click here
770.928.0456
Cost to Build
Modify Plan
Free online quote >
Photographs, if shown, may reflect homeowner modifications. © Copyright by designer.
Modify Plan
Need to make changes?
Request a free
online quote
.
Save This Plan
Create an online portfolio of
favorite house plans.
Newsletter Sign-up
Each week receive our
free e-newsletters.
© copyright by designer
First Floor:
© copyright by designer
Second Floor:
Return to previous search results >
+ Add to Favorites >
Free Cost Estimator >
Purchase this Plan >
Plan Specifications
GENERAL HOUSE INFORMATION
Number of Stories:
2
Width:
52' 0"
Depth:
65' 0"
Dwelling Number:
Single
EXTERIOR STYLE
Bungalow
Cottage
Craftsman
Concept Plan
NUMBERS OF ROOMS
Bedrooms:
3
Full Baths:
2
Half Baths:
1
FINISHED SQUARE FOOTAGE
Main Level:
1536 Sq. Ft.
Upper Level:
871 Sq. Ft.
Total:
2407 Sq. Ft.
UNFINISHED SQUARE FOOTAGE
Garage:
506 Sq. Ft.
Storage:
390 Sq. Ft.
Porch:
60 Sq. Ft.
Deck:
144 Sq. Ft.
Bonus Room:
208 Sq. Ft.
GARAGE
Garage Type:
Detached
Garage Size:
2
FOUNDATION
Basement Alternate
Slab
HOUSE AND CEILING HEIGHTS
First Floor Ceiling:
10
Second Floor Ceiling:
9
Maximum House Height:
27' 5"
FRAMING INFORMATION
Roof Framing:
Stick
Exterior Wall Framing:
2x4
ROOF PITCH
Primary:
12/12
Secondary:
12/5
ROOF LOAD
Live:
20
Dead:
10
INSULATION (R)
Per IRC Climate Zones
KEY FEATURES
Attached
Basement
Bonus Room
Country Kitchen
Covered Front Porch
Dining Room
Double Vanity Sink
Family Room
Fireplace
Front-entry
Home Office
Kitchen Island
KEY FEATURES
Laundry 1st Fl
Loft / Balcony
Master Bdrm Main Floor
Open Floor Plan
Rear Porch
Separate Tub and Shower
Slab
Split Bedrooms
Storage Space
Unfinished Space
Vaulted Ceilings
Walk-in Closet
Top
Recently Viewed House Plans
Save this Plan
Don't have an account?
Click here
to save your favorite plans.
Top
pnlExclusivePlansSearch
WINSTON House Plan Alternate Elevations
1137
Close
Oops!
It looks like you don't have a Flash player installed.
Click here
to go to Adobe download page.
WINSTON House Plan
1137
Close
Oops!
It looks like you don't have a Flash player installed.
Click here
to go to Adobe download page.
WINSTON House Plan Similar Plans
Close
Oops!
It looks like you don't have a Flash player installed.
Click here
to go to Adobe download page.
Member of
Member of
The American Institute
of Building Design
National council of
Building Designers Certificate
Please make note, Contact us by phone for directions to office.
Office visits are by appointment only.
HOME
PLAN SEARCH
SERVICES
FAQs
ABOUT US
MY ACCOUNT
SHOPPING CART
CONTACT
TESTIMONIALS