HOUSEPLANS DESIGNED FOR THE WAY YOU LIVE
HOME PLAN SEARCH SERVICES FAQs ABOUT US MY ACCOUNT SHOPPING CART CONTACT TESTIMONIALS

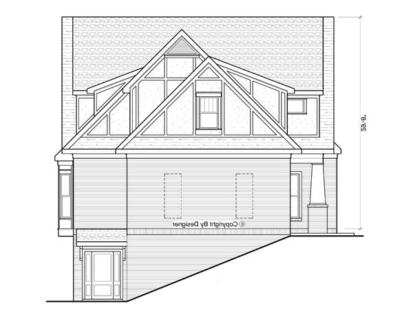
House Plan HPR-7121

Total Living Area: 3182 Sq. Ft.
Main Level: 1294 Sq. Ft.
Second Floor: 1888 Sq. Ft.
Lower Floor: 1555 Sq. Ft.
Bedrooms: 4
Full Baths: 3, Half Baths: 1
Width: 38 Ft. 8 In.    Depth: 74 Ft.
Garage Size: 2
Foundation: WALK OUT BASEMENT
3D Tour

Plan Packages

HOUSE PLAN SETS
 PDF BID SET  $850.00
 PDF File  $1,325.00
 Five Sets of Plans  $1,450.00
 CAD File  $1,988.00
FOUNDATION OPTIONS
 WALK OUT BASEMENT  $0.00

For more details about our plan packages click here
 
Photographs, if shown, may reflect homeowner modifications. © Copyright by designer.
 
Need to make changes?
Request a free online quote.
Create an online portfolio of
favorite house plans.
Each week receive our
free e-newsletters.

© copyright by designer 
First Floor:
First Floor image of INGLEWOOD House Plan
© copyright by designer 
Second Floor:
Second Floor image of INGLEWOOD House Plan
© copyright by designer 
Lower Level:
Lower Level image of INGLEWOOD House Plan
Plan Specifications
  GENERAL HOUSE INFORMATION
Number of Stories:2
Width:38' 8"
Depth:74' 0"
Dwelling Number:Single
  EXTERIOR STYLE
Vacation
Cottage
Craftsman
Bungalow
PDFs Fast!
Old House Classics
Luxury
  NUMBERS OF ROOMS
Bedrooms:4
Full Baths:3
Half Baths:1
  FINISHED SQUARE FOOTAGE
Main Level:1294 Sq. Ft.
Upper Level: 1888 Sq. Ft.
Lower Level:1555 Sq. Ft.
Total: 3182 Sq. Ft.
  UNFINISHED SQUARE FOOTAGE
Garage:545 Sq. Ft.
Porch:400 Sq. Ft.
Patio:300 Sq. Ft.
  GARAGE
Garage Type:Attached
Garage Size:2
  FOUNDATION
WALK OUT BASEMENT
  HOUSE AND CEILING HEIGHTS
First Floor Ceiling:10
Second Floor Ceiling:8
Maximum House Height:29' 8"
  FRAMING INFORMATION
Roof Framing:Stick
Exterior Wall Framing:2x4
  ROOF PITCH
Primary:10/12
Dormer:5/12
  ROOF LOAD
Live:20
Dead:10
  INSULATION (R)
Per IRC Climate Zones
  KEY FEATURES
Attached
Basement
Covered Front Porch
Covered Rear Porch
Daylight Basement
Dining Room
Double Vanity Sink
Family Room
Fireplace
Foyer
Front Porch
Great Room
His and Hers Master Closets
Home Office
Kitchen Island
Laundry 2nd Fl
  KEY FEATURES
Loft / Balcony
Master Bdrm Upstairs
Nook / Breakfast Area
Nursery Room
Open Floor Plan
Rear Porch
Separate Tub and Shower
Side-entry
Sitting Area
Suited for narrow lot
Suited for sloping lot
Vaulted Ceilings
Walk-in Closet
Walk-in Pantry
Walkout Basement
Recently Viewed House Plans
Plan 7121
Save this Plan

Don't have an account? Click here to save your favorite plans.
pnlExclusivePlansSearch

 

Member of Member of
The American Institute
of Building Design
National council of
Building Designers Certificate

Please make note, Contact us by phone for directions to office.
Office visits are by appointment only.

HOME PLAN SEARCH SERVICES FAQs ABOUT US MY ACCOUNT SHOPPING CART CONTACT TESTIMONIALS