HOUSEPLANS DESIGNED FOR THE WAY YOU LIVE
HOME
PLAN SEARCH
SERVICES
FAQs
ABOUT US
MY ACCOUNT
SHOPPING CART
CONTACT
TESTIMONIALS
House Plan HPR-6803
Total Living Area:
2537 Sq. Ft.
Main Level:
1105 Sq. Ft.
Second Floor:
1432 Sq. Ft.
Bonus:
993 Sq. Ft.
Bedrooms:
4
Full Baths:
2,
Half Baths:
1
Width:
61 Ft.
Depth:
31 Ft.
Garage Size:
2
Foundation:
Basement Alternate, WALK OUT BASEMENT
+
View Plan Details
Reverse Plan
Favorites
Print Plan
3D Tour
Plan Packages
HOUSE PLAN SETS
PDF BID SET
$800.00
PDF File
$1,250.00
Five Sets of Plans
$1,350.00
FOUNDATION OPTIONS
WALK OUT BASEMENT
$0.00
Basement Alternate
$600.00
ADDITIONAL PLAN OPTIONS
Conversion to 2 x 6 Walls
$750.00
For more details about our plan packages
click here
770.928.0456
Cost to Build
Modify Plan
Free online quote >
Photographs, if shown, may reflect homeowner modifications. © Copyright by designer.
Modify Plan
Need to make changes?
Request a free
online quote
.
Save This Plan
Create an online portfolio of
favorite house plans.
Newsletter Sign-up
Each week receive our
free e-newsletters.
© copyright by designer
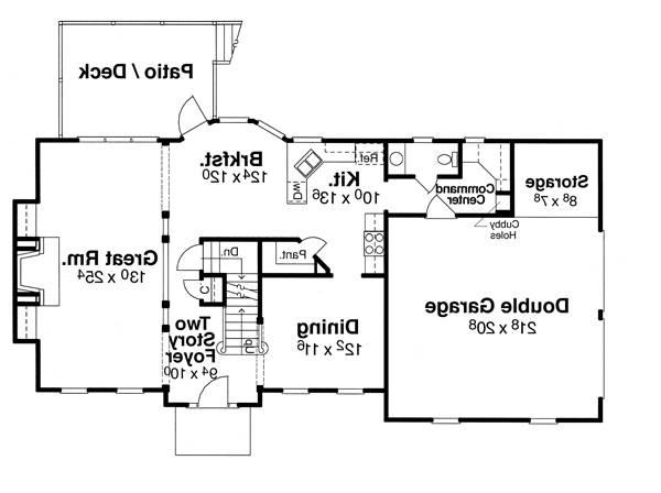
First Floor:
© copyright by designer
Second Floor:
© copyright by designer
Lower Level:
Return to previous search results >
+ Add to Favorites >
Free Cost Estimator >
Purchase this Plan >
Plan Specifications
GENERAL HOUSE INFORMATION
Number of Stories:
2
Width:
61' 0"
Depth:
31' 0"
Dwelling Number:
Single
Bonus Access:
1st Floor
EXTERIOR STYLE
Traditional
Colonial
Southern
Builders
PDFs Fast!
Old House Classics
NUMBERS OF ROOMS
Bedrooms:
4
Full Baths:
2
Half Baths:
1
FINISHED SQUARE FOOTAGE
Main Level:
1105 Sq. Ft.
Upper Level:
1432 Sq. Ft.
Total:
2537 Sq. Ft.
UNFINISHED SQUARE FOOTAGE
Garage:
462 Sq. Ft.
Storage:
72 Sq. Ft.
Deck:
130 Sq. Ft.
Bonus Room:
993 Sq. Ft.
GARAGE
Garage Type:
Attached
Garage Size:
2
FOUNDATION
Basement Alternate
WALK OUT BASEMENT
HOUSE AND CEILING HEIGHTS
First Floor Ceiling:
9
Second Floor Ceiling:
8
Maximum House Height:
31' 0"
FRAMING INFORMATION
Roof Framing:
Stick
Exterior Wall Framing:
2x4
ROOF PITCH
Primary:
10/12
Gable:
12/12
Dormer:
12/12
Porch:
3/12
ROOF LOAD
Live:
20
Dead:
10
INSULATION (R)
Per IRC Climate Zones
KEY FEATURES
2 Story Volume
Attached
Basement
Covered Front Porch
Deck
Dining Room
Double Vanity Sink
Fireplace
Foyer
Front Porch
Great Room
Home Office
Laundry 2nd Fl
Loft / Balcony
KEY FEATURES
Master Bdrm Upstairs
Nook / Breakfast Area
Open Floor Plan
Separate Tub and Shower
Side-entry
Sitting Area
Split Bedrooms
Suited for sloping lot
Unfinished Space
Vaulted Ceilings
Walk-in Closet
Walk-in Pantry
Walkout Basement
Top
Recently Viewed House Plans
Save this Plan
Don't have an account?
Click here
to save your favorite plans.
Top
pnlExclusivePlansSearch
CLAIRMONT House Plan Alternate Elevations
6803
Close
Oops!
It looks like you don't have a Flash player installed.
Click here
to go to Adobe download page.
CLAIRMONT House Plan
6803
Close
Oops!
It looks like you don't have a Flash player installed.
Click here
to go to Adobe download page.
CLAIRMONT House Plan Similar Plans
5836
Close
Oops!
It looks like you don't have a Flash player installed.
Click here
to go to Adobe download page.
Member of
Member of
The American Institute
of Building Design
National council of
Building Designers Certificate
Please make note, Contact us by phone for directions to office.
Office visits are by appointment only.
HOME
PLAN SEARCH
SERVICES
FAQs
ABOUT US
MY ACCOUNT
SHOPPING CART
CONTACT
TESTIMONIALS