HOUSEPLANS DESIGNED FOR THE WAY YOU LIVE
HOME
PLAN SEARCH
SERVICES
FAQs
ABOUT US
MY ACCOUNT
SHOPPING CART
CONTACT
TESTIMONIALS
House Plan HPR-6789
Total Living Area:
3656 Sq. Ft.
Main Level:
2329 Sq. Ft.
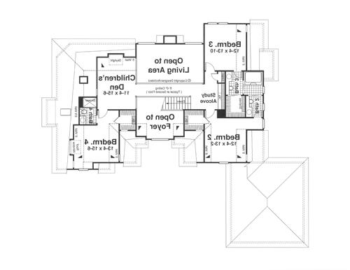
Second Floor:
1259 Sq. Ft.
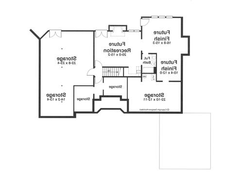
Lower Floor:
420 Sq. Ft.
Bonus:
68 Sq. Ft.
Bedrooms:
4
Full Baths:
4,
Half Baths:
3
Width:
77 Ft.
Depth:
66 Ft.
Garage Size:
2
Foundation:
WALK OUT BASEMENT
+
View Plan Details
Reverse Plan
Favorites
Print Plan
3D Tour
Plan Packages
HOUSE PLAN SETS
PDF BID SET
$950.00
PDF File
$1,500.00
Five Sets of Plans
$1,650.00
FOUNDATION OPTIONS
WALK OUT BASEMENT
$0.00
For more details about our plan packages
click here
770.928.0456
Cost to Build
Modify Plan
Free online quote >
Photographs, if shown, may reflect homeowner modifications. © Copyright by designer.
Modify Plan
Need to make changes?
Request a free
online quote
.
Save This Plan
Create an online portfolio of
favorite house plans.
Newsletter Sign-up
Each week receive our
free e-newsletters.
© copyright by designer
First Floor:
© copyright by designer
Second Floor:
© copyright by designer
Lower Level:
Return to previous search results >
+ Add to Favorites >
Free Cost Estimator >
Purchase this Plan >
Plan Specifications
GENERAL HOUSE INFORMATION
Number of Stories:
1.5
Width:
77' 0"
Depth:
66' 0"
Dwelling Number:
Single
EXTERIOR STYLE
Traditional
European
Luxury
NUMBERS OF ROOMS
Bedrooms:
4
Full Baths:
4
Half Baths:
3
FINISHED SQUARE FOOTAGE
Main Level:
2329 Sq. Ft.
Upper Level:
1259 Sq. Ft.
Lower Level:
420 Sq. Ft.
Total:
3656 Sq. Ft.
UNFINISHED SQUARE FOOTAGE
Garage:
528 Sq. Ft.
Deck:
430 Sq. Ft.
Bonus Room:
68 Sq. Ft.
GARAGE
Garage Type:
Attached
Garage Size:
2
FOUNDATION
WALK OUT BASEMENT
HOUSE AND CEILING HEIGHTS
First Floor Ceiling:
9
Second Floor Ceiling:
8
Maximum House Height:
28' 0"
FRAMING INFORMATION
Roof Framing:
Stick
Exterior Wall Framing:
2x4
ROOF PITCH
Primary:
12/12
Secondary:
7/12
Teritary:
7/12
Gable:
12/12
Dormer:
12/12
ROOF LOAD
Live:
20
Dead:
10
INSULATION (R)
Per IRC Climate Zones
KEY FEATURES
2 Story Volume
Attached
Basement
CAD FILE NOT AVAILABLE FOR THIS PLAN
Deck
Dining Room
Double Vanity Sink
Family Room
Fireplace
Formal LR
Foyer
Guest Suite
His and Hers Master Closets
Home Office
Kitchen Island
Laundry 1st Fl
KEY FEATURES
Library/Media Rm
Loft / Balcony
Master Bdrm Main Floor
Nook / Breakfast Area
Open Floor Plan
Peninsula / Eating Bar
Separate Tub and Shower
Side-entry
Sitting Area
Split Bedrooms
Suited for sloping lot
Suited for view lot
Vaulted Ceilings
Walk-in Closet
Walkout Basement
Top
Recently Viewed House Plans
Save this Plan
Don't have an account?
Click here
to save your favorite plans.
Top
pnlExclusivePlansSearch
ST. LAURENT House Plan Alternate Elevations
6789
Close
Oops!
It looks like you don't have a Flash player installed.
Click here
to go to Adobe download page.
ST. LAURENT House Plan
6789
Close
Oops!
It looks like you don't have a Flash player installed.
Click here
to go to Adobe download page.
ST. LAURENT House Plan Similar Plans
Close
Oops!
It looks like you don't have a Flash player installed.
Click here
to go to Adobe download page.
Member of
Member of
The American Institute
of Building Design
National council of
Building Designers Certificate
Please make note, Contact us by phone for directions to office.
Office visits are by appointment only.
HOME
PLAN SEARCH
SERVICES
FAQs
ABOUT US
MY ACCOUNT
SHOPPING CART
CONTACT
TESTIMONIALS