HOUSEPLANS DESIGNED FOR THE WAY YOU LIVE
HOME
PLAN SEARCH
SERVICES
FAQs
ABOUT US
MY ACCOUNT
SHOPPING CART
CONTACT
TESTIMONIALS
House Plan HPR-6267
Total Living Area:
2087 Sq. Ft.
Main Level:
783 Sq. Ft.
Second Floor:
754 Sq. Ft.
Third Floor:
550 Sq. Ft.
Bonus:
616 Sq. Ft.
Bedrooms:
2
Full Baths:
2,
Half Baths:
1
Width:
31 Ft.
Depth:
80 Ft.
Garage Size:
2
Foundation:
Crawl Space
+
View Plan Details
Reverse Plan
Favorites
Print Plan
3D Tour
Plan Packages
HOUSE PLAN SETS
PDF BID SET
$800.00
PDF File
$1,250.00
Five Sets of Plans
$1,350.00
FOUNDATION OPTIONS
Crawl Space
$0.00
For more details about our plan packages
click here
770.928.0456
Cost to Build
Modify Plan
Free online quote >
Photographs, if shown, may reflect homeowner modifications. © Copyright by designer.
Modify Plan
Need to make changes?
Request a free
online quote
.
Save This Plan
Create an online portfolio of
favorite house plans.
Newsletter Sign-up
Each week receive our
free e-newsletters.
© copyright by designer
First Floor:
© copyright by designer
Second Floor:
© copyright by designer
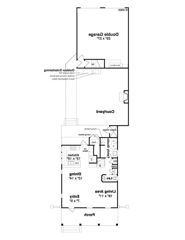
Garage w/ Apt. Above:
© copyright by designer
First Floor w/Courtyard:
© copyright by designer
Recreation Room:
© copyright by designer
Garage Apt.:
© copyright by designer
Courtyard:
Return to previous search results >
+ Add to Favorites >
Free Cost Estimator >
Purchase this Plan >
Plan Specifications
GENERAL HOUSE INFORMATION
Number of Stories:
3
Width:
31' 0"
Depth:
80' 0"
Dwelling Number:
Single
EXTERIOR STYLE
Traditional
Beach
Vacation
Cottage
Florida
Old House Classics
NUMBERS OF ROOMS
Bedrooms:
2
Full Baths:
2
Half Baths:
1
FINISHED SQUARE FOOTAGE
Main Level:
783 Sq. Ft.
Upper Level:
754 Sq. Ft.
Third Level:
550 Sq. Ft.
Total:
2087 Sq. Ft.
UNFINISHED SQUARE FOOTAGE
Garage:
672 Sq. Ft.
Porch:
416 Sq. Ft.
Deck:
132 Sq. Ft.
Bonus Room:
616 Sq. Ft.
GARAGE
Garage Type:
Detached
Garage Size:
2
FOUNDATION
Crawl Space
HOUSE AND CEILING HEIGHTS
First Floor Ceiling:
10
Second Floor Ceiling:
9
Maximum House Height:
35' 8"
FRAMING INFORMATION
Roof Framing:
Stick
Exterior Wall Framing:
2x4
ROOF PITCH
Primary:
12/12
ROOF LOAD
Live:
20
Dead:
10
INSULATION (R)
Per IRC Climate Zones
KEY FEATURES
Basement
Courtyard
Covered Front Porch
Covered Rear Porch
Crawlspace
Deck
Detached
Double Vanity Sink
Front Porch
Great Room
Guest Suite
Laundry 1st Fl
KEY FEATURES
Loft / Balcony
Master Bdrm Upstairs
Open Floor Plan
Peninsula / Eating Bar
Rear Porch
Rec Room
Storage Space
Suited for narrow lot
Suited for view lot
Vaulted Ceilings
Walk-in Closet
With Living Space
Top
Recently Viewed House Plans
Save this Plan
Don't have an account?
Click here
to save your favorite plans.
Top
pnlExclusivePlansSearch
Hemingway House Plan Alternate Elevations
6267
Close
Oops!
It looks like you don't have a Flash player installed.
Click here
to go to Adobe download page.
Hemingway House Plan
6267
Close
Oops!
It looks like you don't have a Flash player installed.
Click here
to go to Adobe download page.
Hemingway House Plan Similar Plans
7014
Close
Oops!
It looks like you don't have a Flash player installed.
Click here
to go to Adobe download page.
Member of
Member of
The American Institute
of Building Design
National council of
Building Designers Certificate
Please make note, Contact us by phone for directions to office.
Office visits are by appointment only.
HOME
PLAN SEARCH
SERVICES
FAQs
ABOUT US
MY ACCOUNT
SHOPPING CART
CONTACT
TESTIMONIALS