HOUSEPLANS DESIGNED FOR THE WAY YOU LIVE
HOME
PLAN SEARCH
SERVICES
FAQs
ABOUT US
MY ACCOUNT
SHOPPING CART
CONTACT
TESTIMONIALS
House Plan HPR-4253
Total Living Area:
877 Sq. Ft.
Main Level:
1072 Sq. Ft.
Second Floor:
877 Sq. Ft.
Lower Floor:
1025 Sq. Ft.
Bedrooms:
2
Full Baths:
1
Width:
45 Ft.
Depth:
26 Ft.
Garage Size:
5
Foundation:
WALK OUT BASEMENT
+
View Plan Details
Reverse Plan
Favorites
Print Plan
3D Tour
Plan Packages
HOUSE PLAN SETS
PDF BID SET
$600.00
PDF File
$950.00
Five Sets of Plans
$1,000.00
FOUNDATION OPTIONS
WALK OUT BASEMENT
$0.00
ADDITIONAL PLAN OPTIONS
Conversion to 2 x 6 Walls
$500.00
Right Read Reverse
$650.00
Additional Sets
$60.00
For more details about our plan packages
click here
770.928.0456
Cost to Build
Modify Plan
Free online quote >
Photographs, if shown, may reflect homeowner modifications. © Copyright by designer.
Modify Plan
Need to make changes?
Request a free
online quote
.
Save This Plan
Create an online portfolio of
favorite house plans.
Newsletter Sign-up
Each week receive our
free e-newsletters.
© copyright by designer
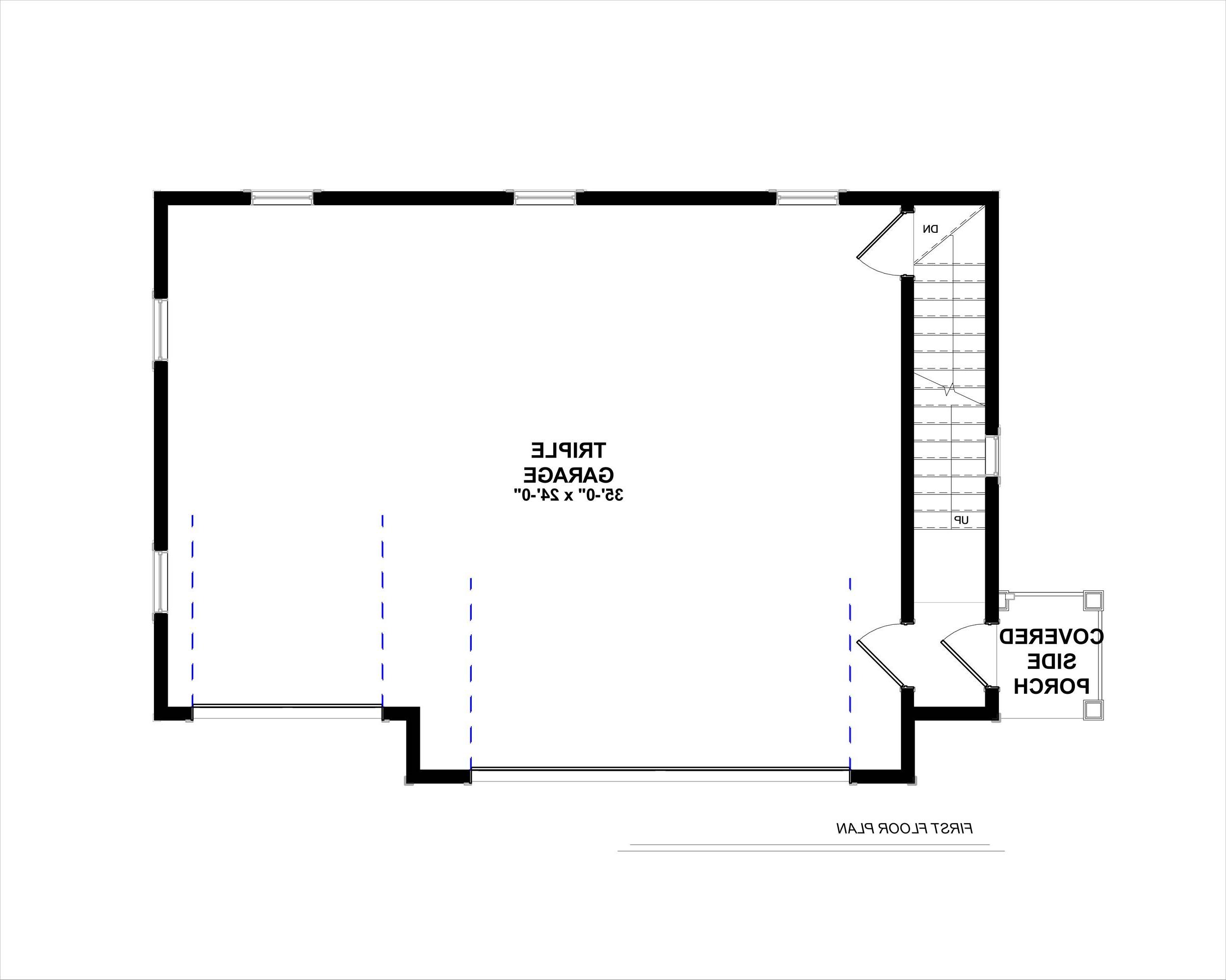
1st Floor:
© copyright by designer
2nd Floor:
© copyright by designer
Front Left:
Return to previous search results >
+ Add to Favorites >
Free Cost Estimator >
Purchase this Plan >
Plan Specifications
GENERAL HOUSE INFORMATION
Number of Stories:
3
Width:
45' 0"
Depth:
26' 0"
Dwelling Number:
Garage
Bonus Access:
None
EXTERIOR STYLE
Cottage
Southern
Traditional
PDFs Fast!
ADU
NUMBERS OF ROOMS
Bedrooms:
2
Full Baths:
1
FINISHED SQUARE FOOTAGE
Main Level:
1072 Sq. Ft.
Upper Level:
877 Sq. Ft.
Lower Level:
1025 Sq. Ft.
Total:
877 Sq. Ft.
UNFINISHED SQUARE FOOTAGE
Garage:
2097 Sq. Ft.
GARAGE
Garage Type:
Garage Size:
5
FOUNDATION
WALK OUT BASEMENT
HOUSE AND CEILING HEIGHTS
First Floor Ceiling:
10
Second Floor Ceiling:
9
Maximum House Height:
35' 2"
FRAMING INFORMATION
Roof Framing:
Stick
Exterior Wall Framing:
2x4
ROOF PITCH
Primary:
12/12
Secondary:
3/12
Gable:
12/12
Porch:
2/12
ROOF LOAD
Live:
20
Dead:
10
INSULATION (R)
Per IRC Climate Zones
KEY FEATURES
Detached
Drive-under
Fireplace
Front-entry
Great Room
Kitchen Island
Laundry 2nd Fl
L-Shaped
No Porch
Open Floor Plan
KEY FEATURES
Oversized
Pantry
Rear-entry
Split Bedrooms
Suited for sloping lot
Vaulted Ceilings
Vaulted Great Room/Living
Vaulted Kitchen
Vaulted Master
With Living Space
Top
Recently Viewed House Plans
Save this Plan
Don't have an account?
Click here
to save your favorite plans.
Top
pnlExclusivePlansSearch
Knolltop House Plan Alternate Elevations
4253
Close
Oops!
It looks like you don't have a Flash player installed.
Click here
to go to Adobe download page.
Knolltop House Plan
4253
Close
Oops!
It looks like you don't have a Flash player installed.
Click here
to go to Adobe download page.
Knolltop House Plan Similar Plans
6945
Close
Oops!
It looks like you don't have a Flash player installed.
Click here
to go to Adobe download page.
Member of
Member of
The American Institute
of Building Design
National council of
Building Designers Certificate
Please make note, Contact us by phone for directions to office.
Office visits are by appointment only.
HOME
PLAN SEARCH
SERVICES
FAQs
ABOUT US
MY ACCOUNT
SHOPPING CART
CONTACT
TESTIMONIALS