HOUSEPLANS DESIGNED FOR THE WAY YOU LIVE
HOME PLAN SEARCH SERVICES FAQs ABOUT US MY ACCOUNT SHOPPING CART CONTACT TESTIMONIALS

House Plan HPR-3178

Total Living Area: 2484 Sq. Ft.
Main Level: 1514 Sq. Ft.
Second Floor: 917 Sq. Ft.
Lower Floor: 52 Sq. Ft.
Bonus: 255 Sq. Ft.
Bedrooms: 3
Full Baths: 2, Half Baths: 1
Width: 80 Ft.    Depth: 42 Ft.
Garage Size: 2
Foundation: Basement Alternate, WALK OUT BASEMENT
3D Tour

Plan Packages

HOUSE PLAN SETS
 PDF BID SET  $1,000.00
 PDF File  $1,600.00
 Five Sets of Plans  $1,750.00
FOUNDATION OPTIONS
 WALK OUT BASEMENT  $0.00

For more details about our plan packages click here
 
Photographs, if shown, may reflect homeowner modifications. © Copyright by designer.
 
Need to make changes?
Request a free online quote.
Create an online portfolio of
favorite house plans.
Each week receive our
free e-newsletters.

© copyright by designer 
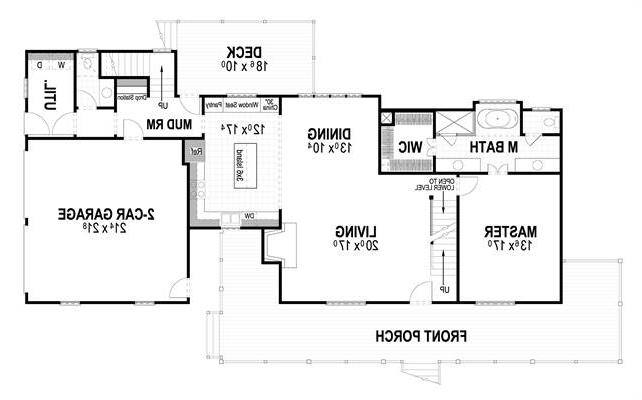
First Floor:
First Floor image of Countryfield II House Plan
© copyright by designer 
Second Floor:
Second Floor image of Countryfield II House Plan
© copyright by designer 
Lower Level:
Lower Level image of Countryfield II House Plan
Plan Specifications
  GENERAL HOUSE INFORMATION
Number of Stories:1.5
Width:80' 0"
Depth:42' 0"
Dwelling Number:Single
  EXTERIOR STYLE
Country
Farmhouse
  NUMBERS OF ROOMS
Bedrooms:3
Full Baths:2
Half Baths:1
  FINISHED SQUARE FOOTAGE
Main Level:1514 Sq. Ft.
Upper Level: 917 Sq. Ft.
Lower Level:52 Sq. Ft.
Total: 2484 Sq. Ft.
  UNFINISHED SQUARE FOOTAGE
Garage:478 Sq. Ft.
Storage:962 Sq. Ft.
Porch:550 Sq. Ft.
Deck:185 Sq. Ft.
Bonus Room:255 Sq. Ft.
  GARAGE
Garage Type:
Garage Size:2
  FOUNDATION
Basement Alternate
WALK OUT BASEMENT
  HOUSE AND CEILING HEIGHTS
First Floor Ceiling:8
Second Floor Ceiling:8
Maximum House Height:23' 0"
  FRAMING INFORMATION
Roof Framing:Stick
Exterior Wall Framing:2x4
  ROOF PITCH
Primary:12/12
Gable:12/12
Dormer:12/12
Porch:3/12
  ROOF LOAD
Live:20
Dead:10
  INSULATION (R)
Per IRC Climate Zones
  KEY FEATURES
Attached
Basement
Country Kitchen
Covered Front Porch
Deck
Dining Room
Double Vanity Sink
Fireplace
Front Porch
Home Office
  KEY FEATURES
Kitchen Island
Laundry 1st Fl
Master Bdrm Main Floor
Mud Room
Open Floor Plan
Rec Room
Separate Tub and Shower
Side-entry
Suited for sloping lot
Unfinished Space
Recently Viewed House Plans
Plan 3178
Save this Plan
Plan 5839
Save this Plan
Plan 1241
Save this Plan

Don't have an account? Click here to save your favorite plans.
pnlExclusivePlansSearch

 

Member of Member of
The American Institute
of Building Design
National council of
Building Designers Certificate

Please make note, Contact us by phone for directions to office.
Office visits are by appointment only.

HOME PLAN SEARCH SERVICES FAQs ABOUT US MY ACCOUNT SHOPPING CART CONTACT TESTIMONIALS