HOUSEPLANS DESIGNED FOR THE WAY YOU LIVE
HOME PLAN SEARCH SERVICES FAQs ABOUT US MY ACCOUNT SHOPPING CART CONTACT TESTIMONIALS

House Plan HPR-2019

Total Living Area: 3383 Sq. Ft.
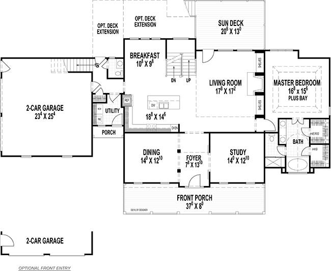
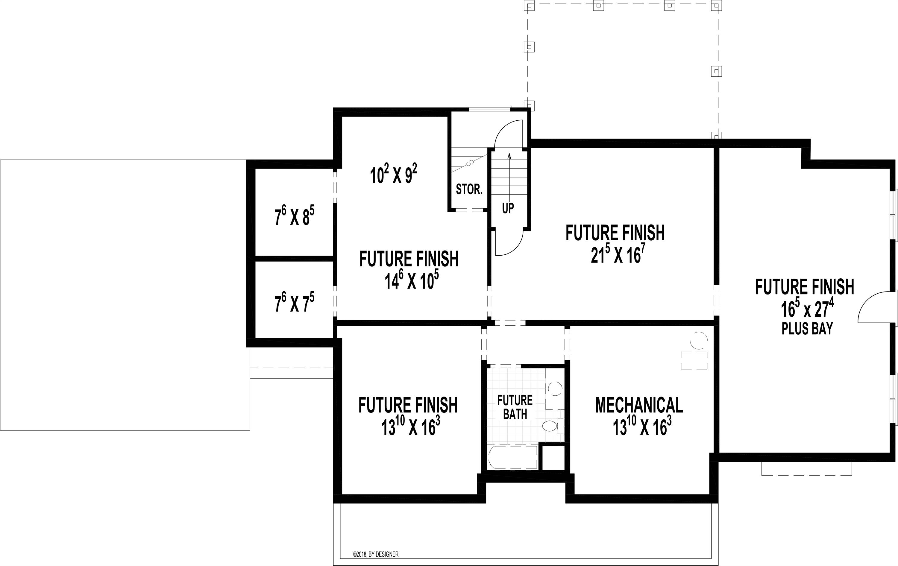
Main Level: 2058 Sq. Ft.
Second Floor: 1325 Sq. Ft.
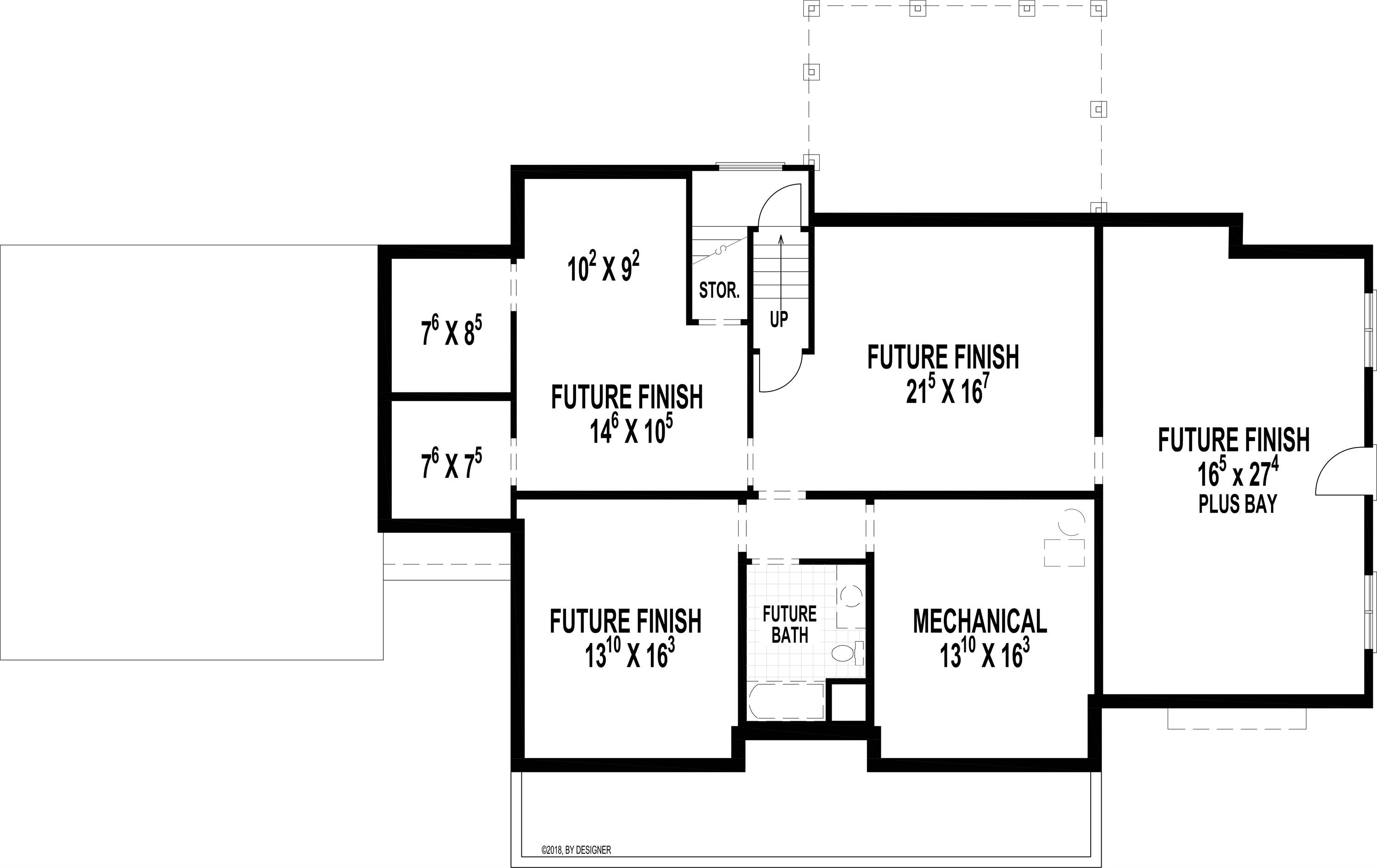
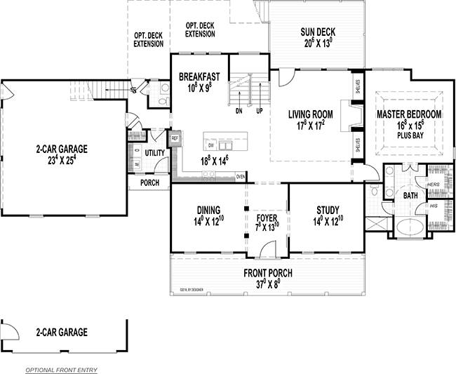
Lower Floor: 2046 Sq. Ft.
Bonus: 618 Sq. Ft.
Bedrooms: 4
Full Baths: 3, Half Baths: 1
Width: 88 Ft.    Depth: 49 Ft.
Garage Size: 2
Foundation: Crawl alternate, Slab alternate, WALK OUT BASEMENT
3D Tour

Plan Packages

HOUSE PLAN SETS
 PDF BID SET  $950.00
 PDF File  $1,500.00
 Five Sets of Plans  $1,650.00
FOUNDATION OPTIONS
 WALK OUT BASEMENT  $0.00
 Crawl alternate  $650.00
 Slab alternate  $650.00
ADDITIONAL PLAN OPTIONS
 Conversion to 2 x 6 Walls  $650.00
 Right Read Reverse  $900.00

For more details about our plan packages click here
 
Photographs, if shown, may reflect homeowner modifications. © Copyright by designer.
 
Need to make changes?
Request a free online quote.
Create an online portfolio of
favorite house plans.
Each week receive our
free e-newsletters.

© copyright by designer 
:
 image of Chaparal House Plan
© copyright by designer 
:
 image of Chaparal House Plan
© copyright by designer 
:
 image of Chaparal House Plan
Plan Specifications
  GENERAL HOUSE INFORMATION
Number of Stories:2
Width:88' 0"
Depth:49' 0"
Dwelling Number:Single
Bonus Access:2nd Floor
  EXTERIOR STYLE
Modern Farmhouse
Southern
Luxury
Farmhouse
  NUMBERS OF ROOMS
Bedrooms:4
Full Baths:3
Half Baths:1
  FINISHED SQUARE FOOTAGE
Main Level:2058 Sq. Ft.
Upper Level: 1325 Sq. Ft.
Lower Level:2046 Sq. Ft.
Total: 3383 Sq. Ft.
  UNFINISHED SQUARE FOOTAGE
Garage:615 Sq. Ft.
Porch:288 Sq. Ft.
Deck:219 Sq. Ft.
Bonus Room:618 Sq. Ft.
  GARAGE
Garage Type:
Garage Size:2
  FOUNDATION
Crawl alternate
Slab alternate
WALK OUT BASEMENT
  HOUSE AND CEILING HEIGHTS
First Floor Ceiling:9
Second Floor Ceiling:8
Maximum House Height:28' 0"
  FRAMING INFORMATION
Roof Framing:Stick
Exterior Wall Framing:2x4
  ROOF PITCH
Primary:7
Gable:7
Dormer:7
Porch:3
  ROOF LOAD
Live:20
Dead:10
  INSULATION (R)
Per IRC Climate Zones
  KEY FEATURES
Attached
Crawlspace
Dining Room
Double Vanity Sink
Exercise Room
Family Room
Fireplace
Foyer
Front Porch
Guest Suite
His and Hers Master Closets
Home Office
Kitchen Island
Laundry 1st Fl
  KEY FEATURES
L-Shaped
Master Bdrm Main Floor
Nook / Breakfast Area
Open Floor Plan
Rear Porch
Rec Room
Separate Tub and Shower
Side-entry
Split Bedrooms
Suited for sloping lot
Suited for view lot
Unfinished Space
Walk-in Closet
Walkout Basement
Recently Viewed House Plans
Plan 2019
Save this Plan
Plan 5823
Save this Plan

Don't have an account? Click here to save your favorite plans.
pnlExclusivePlansSearch

 

Member of Member of
The American Institute
of Building Design
National council of
Building Designers Certificate

Please make note, Contact us by phone for directions to office.
Office visits are by appointment only.

HOME PLAN SEARCH SERVICES FAQs ABOUT US MY ACCOUNT SHOPPING CART CONTACT TESTIMONIALS