HOUSEPLANS DESIGNED FOR THE WAY YOU LIVE
HOME
PLAN SEARCH
SERVICES
FAQs
ABOUT US
MY ACCOUNT
SHOPPING CART
CONTACT
TESTIMONIALS
House Plan HPR-1257
Total Living Area:
680 Sq. Ft.
Main Level:
1043 Sq. Ft.
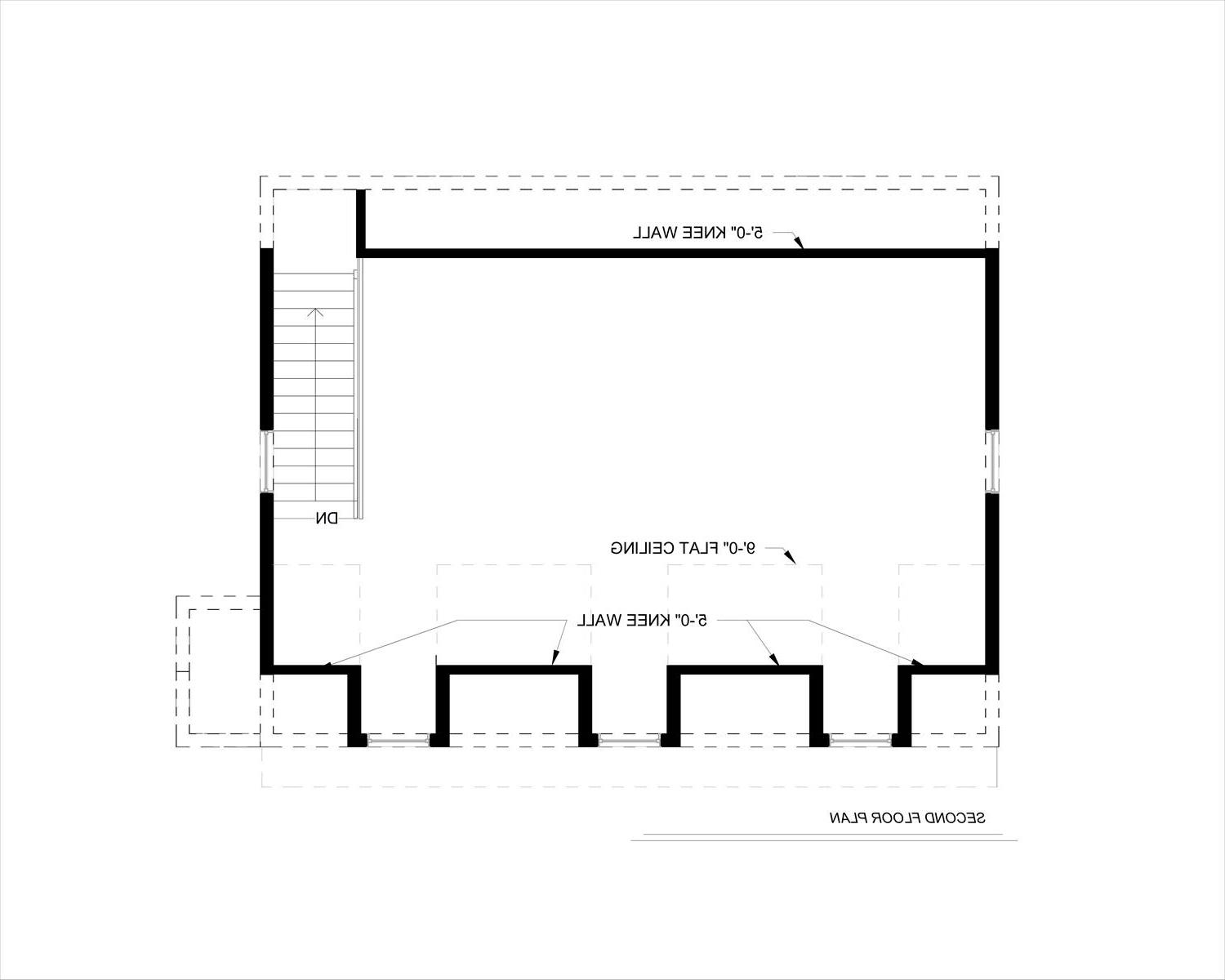
Bonus:
680 Sq. Ft.
Width:
42 Ft.
Depth:
29 Ft.
Garage Size:
3
Foundation:
Slab
+
View Plan Details
Reverse Plan
Favorites
Print Plan
3D Tour
Plan Packages
HOUSE PLAN SETS
PDF BID SET
$300.00
PDF File
$850.00
Five Sets of Plans
$950.00
FOUNDATION OPTIONS
Slab
$0.00
ADDITIONAL PLAN OPTIONS
Right Read Reverse
$550.00
For more details about our plan packages
click here
770.928.0456
Cost to Build
Modify Plan
Free online quote >
Photographs, if shown, may reflect homeowner modifications. © Copyright by designer.
Modify Plan
Need to make changes?
Request a free
online quote
.
Save This Plan
Create an online portfolio of
favorite house plans.
Newsletter Sign-up
Each week receive our
free e-newsletters.
© copyright by designer
1st Floor:
© copyright by designer
2nd Floor:
Return to previous search results >
+ Add to Favorites >
Free Cost Estimator >
Purchase this Plan >
Plan Specifications
GENERAL HOUSE INFORMATION
Number of Stories:
1.5
Width:
42' 0"
Depth:
29' 0"
Dwelling Number:
Garage
Bonus Access:
2nd Floor
EXTERIOR STYLE
Country
Traditional
PDFs Fast!
Cottage
FINISHED SQUARE FOOTAGE
Main Level:
1043 Sq. Ft.
Total:
680 Sq. Ft.
UNFINISHED SQUARE FOOTAGE
Bonus Room:
680 Sq. Ft.
GARAGE
Garage Type:
Garage Size:
3
FOUNDATION
Slab
HOUSE AND CEILING HEIGHTS
First Floor Ceiling:
10'
Second Floor Ceiling:
9
Maximum House Height:
30' 0"
FRAMING INFORMATION
Roof Framing:
Stick
ROOF PITCH
Primary:
12/12
Dormer:
12/12
ROOF LOAD
Live:
20
Dead:
10
INSULATION (R)
Per IRC Climate Zones
KEY FEATURES
Breezeway
Detached
Front-entry
Oversized
KEY FEATURES
Rec Room
Suited for corner lot
Suited for narrow lot
Suited for sloping lot
Top
Recently Viewed House Plans
Save this Plan
Save this Plan
Save this Plan
Save this Plan
Don't have an account?
Click here
to save your favorite plans.
Top
pnlExclusivePlansSearch
Garage House Plan Alternate Elevations
1257
Close
Oops!
It looks like you don't have a Flash player installed.
Click here
to go to Adobe download page.
Garage House Plan
1257
Close
Oops!
It looks like you don't have a Flash player installed.
Click here
to go to Adobe download page.
Garage House Plan Similar Plans
1213
Close
Oops!
It looks like you don't have a Flash player installed.
Click here
to go to Adobe download page.
Member of
Member of
The American Institute
of Building Design
National council of
Building Designers Certificate
Please make note, Contact us by phone for directions to office.
Office visits are by appointment only.
HOME
PLAN SEARCH
SERVICES
FAQs
ABOUT US
MY ACCOUNT
SHOPPING CART
CONTACT
TESTIMONIALS