HOUSEPLANS DESIGNED FOR THE WAY YOU LIVE
HOME PLAN SEARCH SERVICES FAQs ABOUT US MY ACCOUNT SHOPPING CART CONTACT TESTIMONIALS

House Plan HPR-1186

Total Living Area: 3518 Sq. Ft.
Main Level: 1564 Sq. Ft.
Second Floor: 1356 Sq. Ft.
Lower Floor: 1978 Sq. Ft.
Bonus: 598 Sq. Ft.
Bedrooms: 4
Full Baths: 3, Half Baths: 1
Width: 89 Ft.    Depth: 39 Ft. 6 In.
Garage Size: 2
Foundation: Basement Alternate, WALK OUT BASEMENT
3D Tour

Plan Packages

HOUSE PLAN SETS
 PDF BID SET  $1,000.00
 PDF File  $1,600.00
 Five Sets of Plans  $1,750.00
FOUNDATION OPTIONS
 WALK OUT BASEMENT  $0.00

For more details about our plan packages click here
 
Photographs, if shown, may reflect homeowner modifications. © Copyright by designer.
 
Need to make changes?
Request a free online quote.
Create an online portfolio of
favorite house plans.
Each week receive our
free e-newsletters.

© copyright by designer 
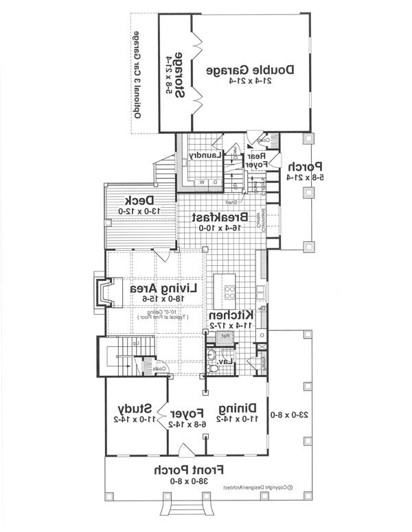
First Floor:
First Floor image of HUNTINGTON-II House Plan
© copyright by designer 
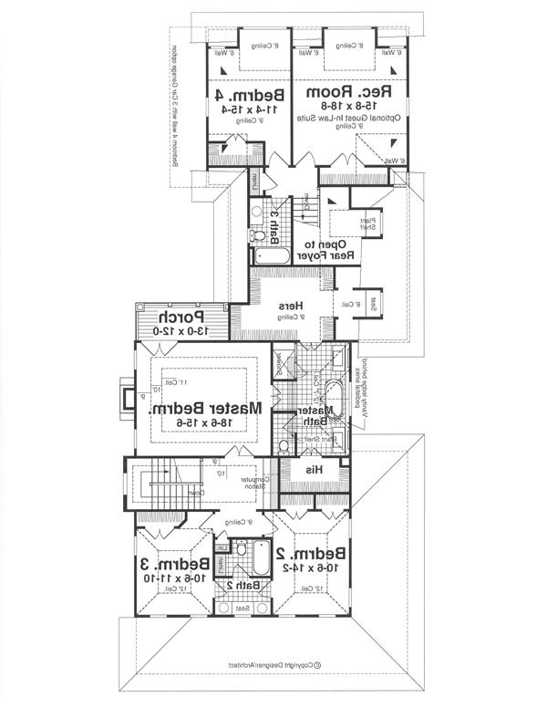
Second Floor:
Second Floor image of HUNTINGTON-II House Plan
© copyright by designer 
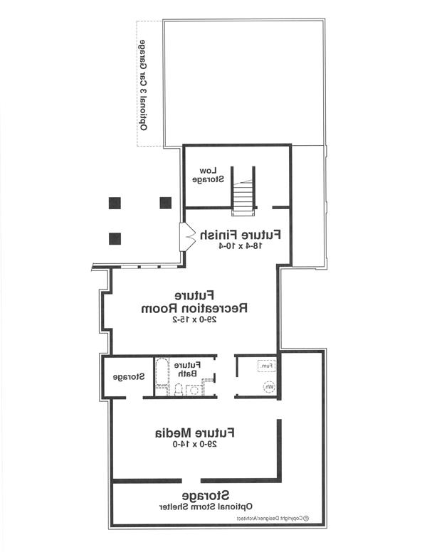
Lower Level:
Lower Level image of HUNTINGTON-II House Plan
Plan Specifications
  GENERAL HOUSE INFORMATION
Number of Stories:2
Width:89' 0"
Depth:39' 6"
Dwelling Number:Single
  EXTERIOR STYLE
Colonial
Traditional
Farmhouse
PDFs Fast!
Luxury
  NUMBERS OF ROOMS
Bedrooms:4
Full Baths:3
Half Baths:1
  FINISHED SQUARE FOOTAGE
Main Level:1564 Sq. Ft.
Upper Level: 1356 Sq. Ft.
Lower Level:1978 Sq. Ft.
Total: 3518 Sq. Ft.
  UNFINISHED SQUARE FOOTAGE
Garage:479 Sq. Ft.
Porch:590 Sq. Ft.
Deck:156 Sq. Ft.
Bonus Room:598 Sq. Ft.
  GARAGE
Garage Type:
Garage Size:2
  FOUNDATION
Basement Alternate
WALK OUT BASEMENT
  HOUSE AND CEILING HEIGHTS
First Floor Ceiling:10
Second Floor Ceiling:9
Maximum House Height:31' 0"
  FRAMING INFORMATION
Roof Framing:Stick
Exterior Wall Framing:2x4
  ROOF PITCH
Primary:7/12
  ROOF LOAD
Live:20
Dead:10
  INSULATION (R)
Per IRC Climate Zones
  KEY FEATURES
Attached
Basement
Breezeway
Covered Rear Porch
Daylight Basement
Deck
Dining Room
Double Vanity Sink
Family Room
Fireplace
Foyer
Front Porch
Guest Suite
His and Hers Master Closets
Home Office
In-law Suite
Kitchen Island
Laundry 1st Fl
  KEY FEATURES
Loft / Balcony
Master Bdrm Upstairs
Mud Room
Nook / Breakfast Area
Open Floor Plan
Rear Porch
Separate Tub and Shower
Split Bedrooms
Storage Space
Suited for corner lot
Suited for sloping lot
Unfinished Space
Vaulted Ceilings
Walk-in Closet
Walkout Basement
With Living Space
Wraparound Porch
Recently Viewed House Plans
Plan 1186
Save this Plan

Don't have an account? Click here to save your favorite plans.
pnlExclusivePlansSearch

 

Member of Member of
The American Institute
of Building Design
National council of
Building Designers Certificate

Please make note, Contact us by phone for directions to office.
Office visits are by appointment only.

HOME PLAN SEARCH SERVICES FAQs ABOUT US MY ACCOUNT SHOPPING CART CONTACT TESTIMONIALS