HOUSEPLANS DESIGNED FOR THE WAY YOU LIVE
HOME
PLAN SEARCH
SERVICES
FAQs
ABOUT US
MY ACCOUNT
SHOPPING CART
CONTACT
TESTIMONIALS
House Plan HPR-1131
Total Living Area:
2105 Sq. Ft.
Main Level:
1537 Sq. Ft.
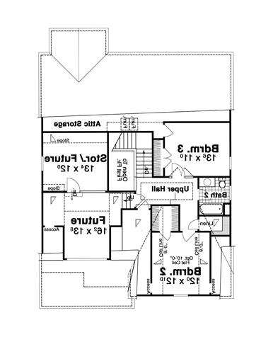
Second Floor:
568 Sq. Ft.
Lower Floor:
1554 Sq. Ft.
Bonus:
377 Sq. Ft.
Bedrooms:
3
Full Baths:
2,
Half Baths:
1
Width:
39 Ft. 6 In.
Depth:
67 Ft.
Garage Size:
2
Foundation:
Slab
+
View Plan Details
Reverse Plan
Favorites
Print Plan
3D Tour
Plan Packages
HOUSE PLAN SETS
PDF BID SET
$750.00
PDF File
$1,200.00
Five Sets of Plans
$1,300.00
FOUNDATION OPTIONS
Slab
$0.00
ADDITIONAL PLAN OPTIONS
For more details about our plan packages
click here
770.928.0456
Cost to Build
Modify Plan
Free online quote >
Photographs, if shown, may reflect homeowner modifications. © Copyright by designer.
Modify Plan
Need to make changes?
Request a free
online quote
.
Save This Plan
Create an online portfolio of
favorite house plans.
Newsletter Sign-up
Each week receive our
free e-newsletters.
© copyright by designer
First Floor:
© copyright by designer
Second Floor:
Return to previous search results >
+ Add to Favorites >
Free Cost Estimator >
Purchase this Plan >
Plan Specifications
GENERAL HOUSE INFORMATION
Number of Stories:
1.5
Width:
39' 6"
Depth:
67' 0"
Dwelling Number:
Single
EXTERIOR STYLE
Bungalow
Cottage
Craftsman
PDFs Fast!
Old House Classics
NUMBERS OF ROOMS
Bedrooms:
3
Full Baths:
2
Half Baths:
1
FINISHED SQUARE FOOTAGE
Main Level:
1537 Sq. Ft.
Upper Level:
568 Sq. Ft.
Lower Level:
1554 Sq. Ft.
Total:
2105 Sq. Ft.
UNFINISHED SQUARE FOOTAGE
Porch:
100 Sq. Ft.
Patio:
153 Sq. Ft.
Bonus Room:
377 Sq. Ft.
GARAGE
Garage Type:
Attached
Garage Size:
2
FOUNDATION
Slab
HOUSE AND CEILING HEIGHTS
First Floor Ceiling:
9
Second Floor Ceiling:
8
Maximum House Height:
23' 8"
FRAMING INFORMATION
Roof Framing:
Stick
Exterior Wall Framing:
2x4
ROOF PITCH
Primary:
8/12
Gable:
14/12
Dormer:
3/12
Porch:
3/12
ROOF LOAD
Live:
20
Dead:
10
INSULATION (R)
Exterior Wall:
13
Interior Wall:
0
Ceiling:
30
Floor:
0
KEY FEATURES
Attached
Basement
Bonus Room
Covered Front Porch
Dining Room
Double Vanity Sink
Fireplace
Foyer
Front Porch
Front-entry
Great Room
His and Hers Master Closets
Home Office
KEY FEATURES
Kitchen Island
Laundry 1st Fl
Master Bdrm Main Floor
Nook / Breakfast Area
Open Floor Plan
Separate Tub and Shower
Slab
Split Bedrooms
Storage Space
Suited for narrow lot
Unfinished Space
Vaulted Ceilings
Walk-in Closet
Top
Recently Viewed House Plans
Save this Plan
Don't have an account?
Click here
to save your favorite plans.
Top
pnlExclusivePlansSearch
ADAMS I House Plan Alternate Elevations
1131
Close
Oops!
It looks like you don't have a Flash player installed.
Click here
to go to Adobe download page.
ADAMS I House Plan
1131
Close
Oops!
It looks like you don't have a Flash player installed.
Click here
to go to Adobe download page.
ADAMS I House Plan Similar Plans
8997
Close
Oops!
It looks like you don't have a Flash player installed.
Click here
to go to Adobe download page.
Member of
Member of
The American Institute
of Building Design
National council of
Building Designers Certificate
Please make note, Contact us by phone for directions to office.
Office visits are by appointment only.
HOME
PLAN SEARCH
SERVICES
FAQs
ABOUT US
MY ACCOUNT
SHOPPING CART
CONTACT
TESTIMONIALS