HOUSEPLANS DESIGNED FOR THE WAY YOU LIVE
HOME
PLAN SEARCH
SERVICES
FAQs
ABOUT US
MY ACCOUNT
SHOPPING CART
CONTACT
TESTIMONIALS
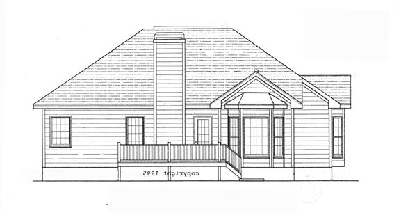
House Plan HPR-1073
Total Living Area:
1645 Sq. Ft.
Main Level:
1645 Sq. Ft.
Lower Floor:
32 Sq. Ft.
Bonus:
582 Sq. Ft.
Bedrooms:
3
Full Baths:
2
Width:
48 Ft.
Depth:
48 Ft.
Garage Size:
3
Foundation:
WALK OUT BASEMENT
+
View Plan Details
Reverse Plan
Favorites
Print Plan
3D Tour
Plan Packages
HOUSE PLAN SETS
PDF BID SET
$750.00
PDF File
$1,200.00
Five Sets of Plans
$1,300.00
FOUNDATION OPTIONS
WALK OUT BASEMENT
$0.00
For more details about our plan packages
click here
770.928.0456
Cost to Build
Modify Plan
Free online quote >
Photographs, if shown, may reflect homeowner modifications. © Copyright by designer.
Modify Plan
Need to make changes?
Request a free
online quote
.
Save This Plan
Create an online portfolio of
favorite house plans.
Newsletter Sign-up
Each week receive our
free e-newsletters.
© copyright by designer
Floor Plan:
© copyright by designer
Lower Level:
Return to previous search results >
+ Add to Favorites >
Free Cost Estimator >
Purchase this Plan >
Plan Specifications
GENERAL HOUSE INFORMATION
Number of Stories:
1
Width:
48' 0"
Depth:
48' 0"
Dwelling Number:
Single
EXTERIOR STYLE
Southern
Traditional
European
PDFs Fast!
NUMBERS OF ROOMS
Bedrooms:
3
Full Baths:
2
FINISHED SQUARE FOOTAGE
Main Level:
1645 Sq. Ft.
Lower Level:
32 Sq. Ft.
Total:
1645 Sq. Ft.
UNFINISHED SQUARE FOOTAGE
Garage:
720 Sq. Ft.
Storage:
208 Sq. Ft.
Deck:
164 Sq. Ft.
Bonus Room:
582 Sq. Ft.
GARAGE
Garage Type:
Garage Size:
3
FOUNDATION
WALK OUT BASEMENT
HOUSE AND CEILING HEIGHTS
First Floor Ceiling:
8
Maximum House Height:
29' 0"
FRAMING INFORMATION
Roof Framing:
Stick
ROOF PITCH
Primary:
8/12
Gable:
8/12
ROOF LOAD
Live:
20
Dead:
10
INSULATION (R)
Per IRC Climate Zones
KEY FEATURES
2 Story Volume
Arches
Basement
Deck
Dining Room
Double Vanity Sink
Drive-under
Fireplace
Foyer
Great Room
Laundry 1st Fl
Master Bdrm Main Floor
KEY FEATURES
Nook / Breakfast Area
Peninsula / Eating Bar
Separate Tub and Shower
Split Bedrooms
Suited for corner lot
Suited for sloping lot
Suited for view lot
Unfinished Space
Vaulted Ceilings
Walk-in Closet
Walkout Basement
Top
Recently Viewed House Plans
Save this Plan
Don't have an account?
Click here
to save your favorite plans.
Top
pnlExclusivePlansSearch
SHERIDAN House Plan Alternate Elevations
1073
Close
Oops!
It looks like you don't have a Flash player installed.
Click here
to go to Adobe download page.
SHERIDAN House Plan
1073
Close
Oops!
It looks like you don't have a Flash player installed.
Click here
to go to Adobe download page.
SHERIDAN House Plan Similar Plans
Close
Oops!
It looks like you don't have a Flash player installed.
Click here
to go to Adobe download page.
Member of
Member of
The American Institute
of Building Design
National council of
Building Designers Certificate
Please make note, Contact us by phone for directions to office.
Office visits are by appointment only.
HOME
PLAN SEARCH
SERVICES
FAQs
ABOUT US
MY ACCOUNT
SHOPPING CART
CONTACT
TESTIMONIALS